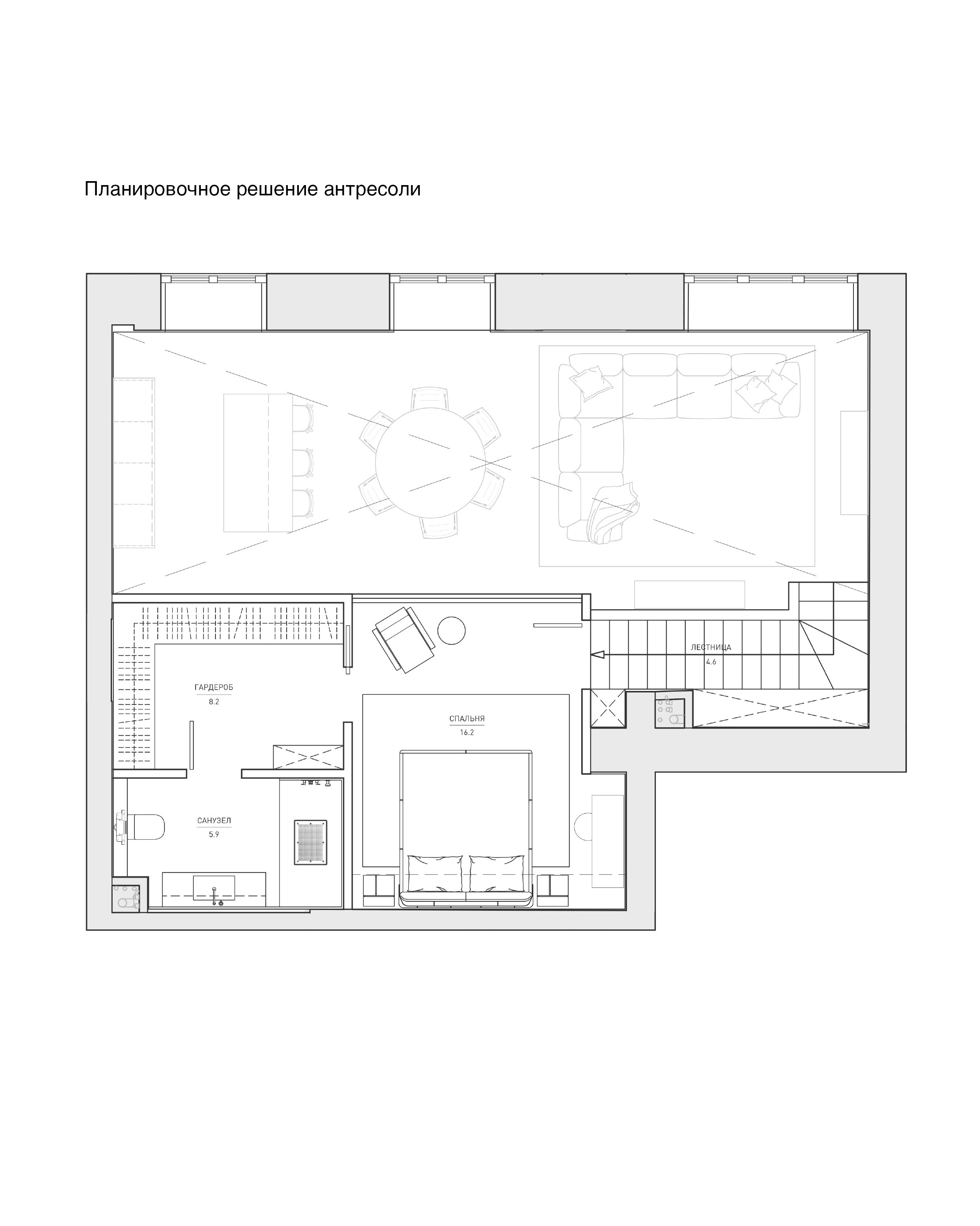
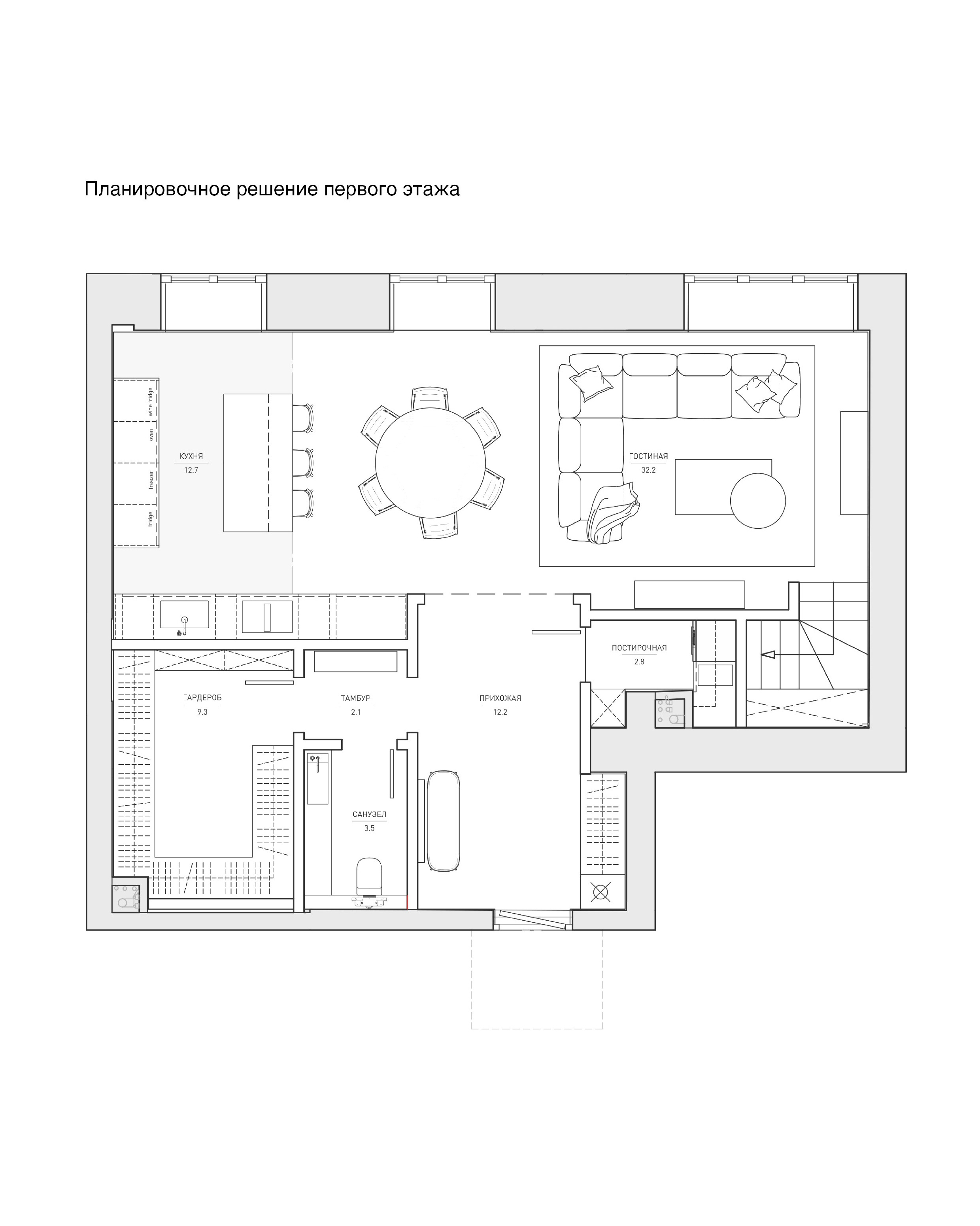
Квартира с антресолью в ЖК Исторический дом «Чистые пруды» 

Москва, 2026

Общая площадь — 113.4 м²

Квартира с антресолью в ЖК Исторический дом «Чистые пруды» | 2026. Artforma
Квартира с антресолью в ЖК Исторический дом «Чистые пруды» | 2026. Artforma
Квартира с антресолью в ЖК Исторический дом «Чистые пруды» | 2026. Artforma
Квартира с антресолью в ЖК Исторический дом «Чистые пруды» | 2026. Artforma