MontCarotte

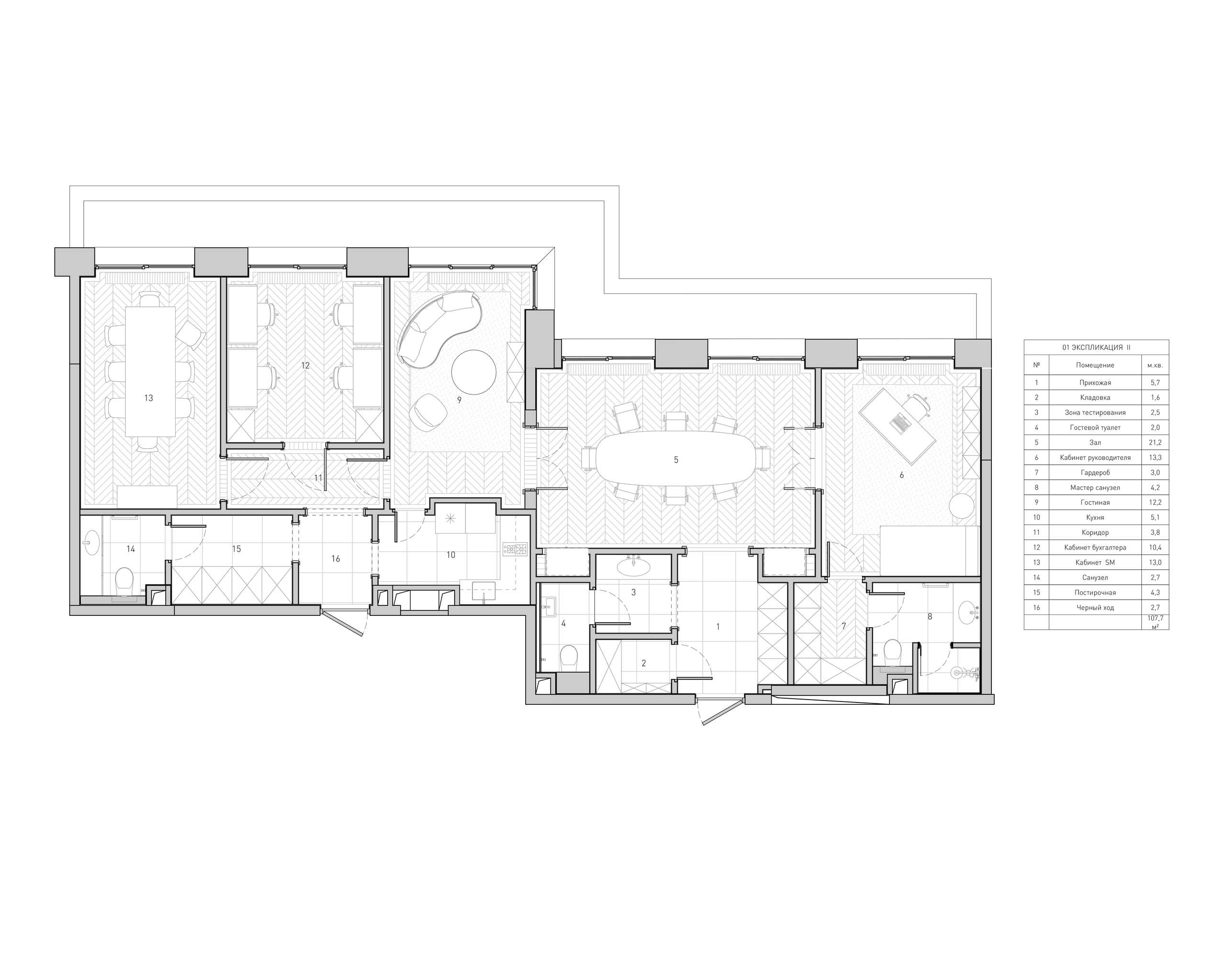
Офис российского представительства итальянского бренда косметики для ухода за красотой улыбки

Москва, 2025

Общая площадь — 107.7 м²  

MontCarotte | 2025. Artforma
MontCarotte | 2025. Artforma